Description

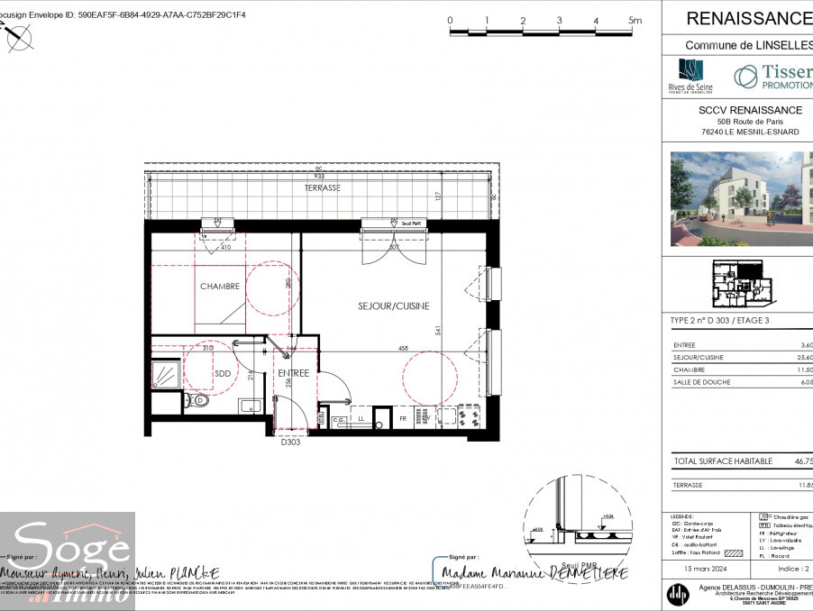
Agréable T2 de 46.75m² dans la Résidence neuve Renaissance, proche centre ville et commodités offrant:
- Hall d'entrée
- Une cuisine ouverte sur le séjour/salle à manger ( meubles à venir )
- Une chambre
- Une salle de douche avec WC
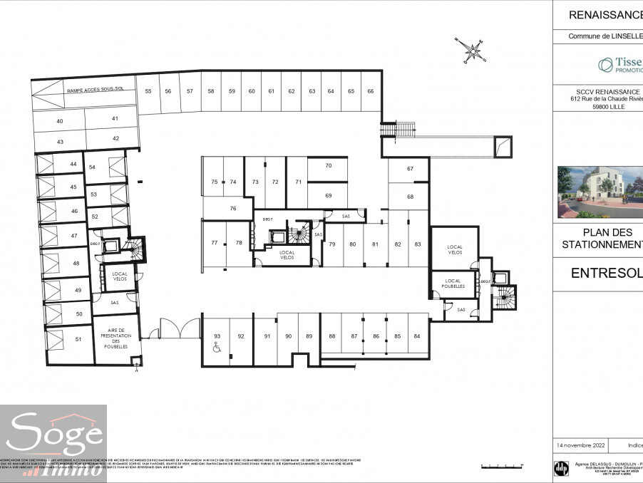
- Un joli balcon et une place de stationnement en sous sol N°72 complètent ce bien

Les charges de 50€ comprennent l'eau froide et l'entretien des parties communes/ LOI PINEL
Chauffage gaz - libre mi novembre

Les informations sur les risques auxquels ce bien est exposé sont disponibles sur le site Géorisques : www.georisques.gouv.fr.
Pour toute demande d'information complémentaire ou demande de visite, vous pouvez nous contacter au 03.20.03.25.67 ou par mail : contact@sogeimmo.com

Diagnostic énergétique

Consommation énergétique
en KWh/m2/an
Diagnostic énergétique
Émission de gaz à effet de serre
en Kg éq CO2/m2/an
Ges