SOGE IMMO Agence
Télécharger la fiche

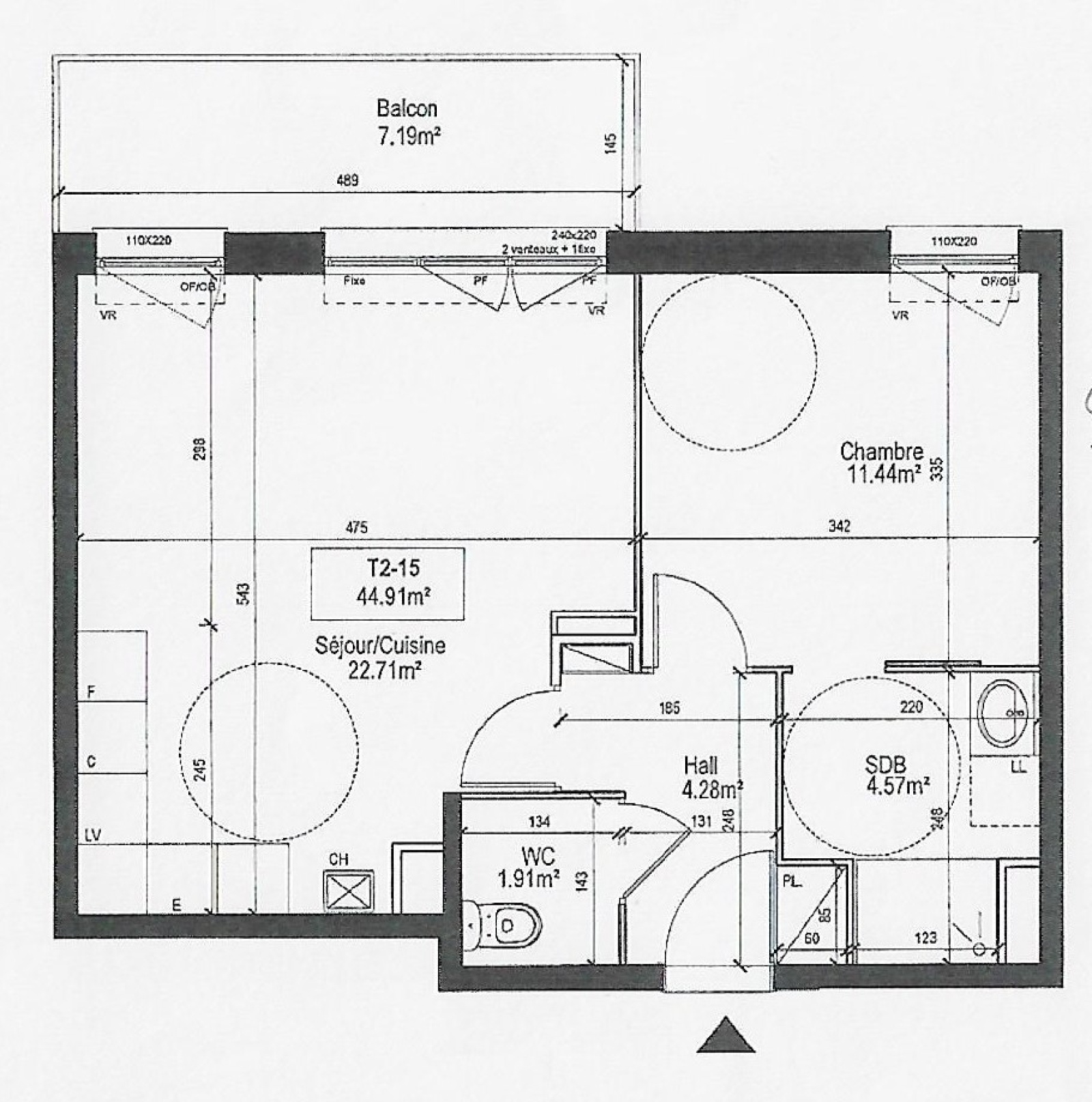
Appartement 2 pièce(s) 1 chambre(s) 44.91 m²

Linselles (59126)
663 € CC* * Charges comprises Référence SOG 606

A propos de ce bien

Dans la nouvelle résidence sécurisée Les Ondines, proche centre ville, ce T2 au 1er étage dessert un hall d'entrée, un séjour de 22.71 m2 sur cuisine ouverte équipée plaque vitro, hotte, four, un balcon de 7.19 m2 orienté Sud-Ouest, une chambre de 11.40 m2, un salle de douche et WC séparé, un parking en sous-sol N°8. Chauffage gaz individuel. Loi Pinel. Les charges de 70 € comprennent l'eau froide et l'entretien des parties communes.

Disponible le 19/03

Les informations sur les risques auxquels ce bien est exposé sont disponibles sur le site Géorisques: www.georisques.gouv.fr

Pour tout renseignement complémentaire ou prise de rendez-vous, contactez le 03.20.03.25.67 ou par mail sur contact@sogeimmo.com.

Caractéristiques de ce bien

  • Surface 44,91 m²
  • séjour 22,71 m²
  • 1 chambre(s)
  • 1 salle(s) d'eau
  • construit en 2021
  • cuisine américaine
  • Chauffage individuel : chaudière (gaz de ville)
  • exposition Sud-Ouest
  • 1er étage
  • ascenseur
  • balcon
  • quartier centre
  • accès handicapé

Diagnostics énergétiques

DPE
GES
DPE ANCIENNE VERSION

Informations financières

Loyer CC* / mois 663 €
Honoraires TTC charge locataire 589 €
Dont état des lieux 136 €
Dépôt de garantie TTC 593 €
Charges locatives (provision donnant lieu à régularisation annuelle) 70 €

Autour du bien

  • Commerces et santé
  • Loisirs
  • Ecoles
  • Transports
  • Pratique